• Projects
  • About
  • Contact
  • PRESS
  • Blog
Cox Architects
  • Projects
  • About
  • Contact
  • PRESS
  • Blog

House31

House31

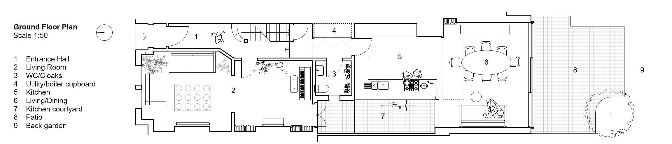
This late-Victorian home has been carefully remodelled to reflect the owners Mediterannean heritage and contemporary lifestyle. Retaining original features—high ceilings, fireplaces, and decorative plasterwork—the design introduces a crisp, white-rendered rear extension with expansive glazing and strong indoor-outdoor flow.

Rather than a typical side-return, the scheme creates a ‘kitchen courtyard’: a green pocket adjacent to the kitchen, framed by a horizontal window and a sliding hob-side opening for alfresco cooking. This biophilic gesture mirrors the rear garden and brings nature into the heart of the home.

The project balances character and clarity, embedding sustainable upgrades while reflecting southern European values of light, openness, and conviviality

LOCATION: London Borough of Wandsworth

STATUS: Completed 2025

BUILDER: Andy Maslak

ENGINEER: Steve Nicolaou

SPECIALIST GLAZING : Maxlight Ltd

PHOTOGRAPHER: Matt Clayton Photography

LINKS:

SUNDAY TIMES (16/11/2025)

METRO (16/09/2025)

01.jpg
MClayton__023.jpg
MClayton__018.jpg
MClayton__016.jpg
MClayton__010.jpg
MClayton__028.jpg
MClayton__027.jpg
MClayton__040.jpg
ground floor plan as proposed.jpg